Link Copied
Listed price in listed location currency (USD).
$357,000

420

MLS® 6525819

  • Key Facts
  • Description
  • Map

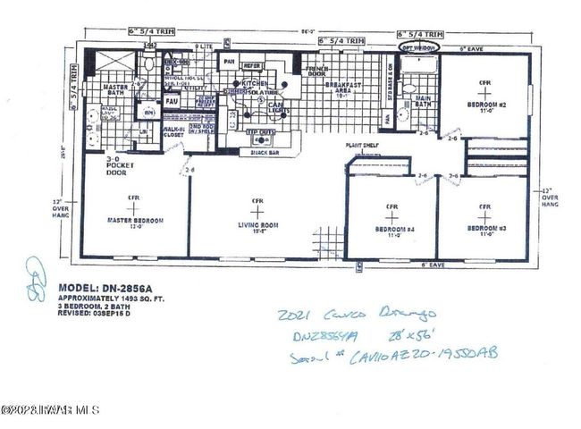
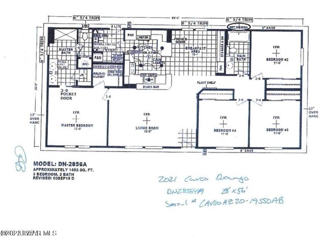
Key Facts

Type Mobile Home
Levels Residential
Size 1493 sqft
Garage No
Taxes $343
Days Active 1070
Lot Size 10 acres
Approx. Age 2021
Avg. Price Per Sqft $239
MLS® Number 6525819

Property Address: 1993 W Cumberland Rd, Ash Fork, AZ, 86320-0110

Average square foot calculated using Size range provided by listing agent.

Description

Brand new 2022 CAVCO DURANGO Model DN-2856A. Located on a nicely treed 10 acre lot. All new flooring, stainless steal appliances, upgraded cabinets and plenty of storage! Master bedroom is split from additional bedrooms. Great views to the east towards Bill Williams Mountain. This home is connected to APS grid and is about 1 mile from paved road. Home backs up on the west side lot line to 640 acres of state land preserving your views & privacy for years to come. Cumberland Rd is just 2 miles North of Ash Fork where you are about 45 minutes to Flagstaff or Prescott. The home is located in the NW portion of the lot allowing plenty of of privacy in the form of tree coverage from Cumberland Rd. Plenty of space to build a barn for your horses or other livestock. Seller carry available
MLS® Number6525819
Laundry Level
Central VacNo
FireplaceNo
Acreage10
Exterior
GarageNo
Approx. Age2021
Basement
DrivewayRV Access/Parking
Garage Spaces0
Heat
A/C
Heating Fuel

Extras

Similar Listings

Price History

-End Date
Not Sold YetSold Price

For Sale

Feb 28, 2023List Date
$357,000List Price
  • Commute

Commute

Starting Address
Destination Address
1993 W Cumberland Rd, Ash Fork, AZ

Like what you see?

Complete the form and we'll be in touch. No login necessary.

Add a Comment
Loading...

Comparable Properties