Link Copied
Listed price in listed location currency (USD).
$479,860
$479,860

321566 sqft4

MLS® 8271116

  • Key Facts
  • Description
  • Rooms
  • Map

Key Facts

Type Single Family Residence
Levels Residential
Size 1566 sqft
Garage No
Taxes $2,643
Lot Size 
Approx. Age 1988
Avg. Price Per Sqft $306
MLS® Number 8271116

Property Address: 625 Wisp Creek Dr, Bailey, CO, 80421-2357

Average square foot calculated using Size range provided by listing agent.

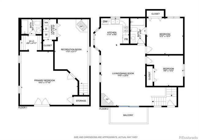
Description

3.6% Assumable VA Loan! - Perfect Starter Mountain Home complete with exclusive community pond that can be fished during the summer and used for ice skating in the winter! This cute Raised Ranch has it all... Two spacious bedrooms on the upper level with gleaming hardwood floors, brand new carpet and stunning walkout basement bedroom perfect for soaking in the mountain sunshine! Both levels have cozy fireplaces for those snowy evenings spent inside with family and friends! NO SEPTIC or WELL to maintain either! This could be your first home, your mountain weekend getaway or a great rental property! Whatever your needs, this one fits the bill and you won't be disappointed! All appliances stay including the washer/dryer...Call today for a private showing! Check Out the Community at: www.Wowmetro.Net
MLS® Number8271116
Laundry LevelIn Unit
Central VacNo
FireplaceNo
Acreage0.22
Exterior
GarageNo
Approx. Age1988
BasementFinished, Walk-Out Access
Driveway
Garage Spaces
Heat
A/C
Heating Fuel

Extras

Rooms

Other:BasementNot available
Other:BasementNot available
625 Wisp Creek Dr, Bailey, CO, 80421-2357

Similar Listings

Price History

List Date
List Price
Status
End Date
Sold Price
Aug 9, 2024
$479,860

Sold

Jan 2, 2025
$479,860
  • Commute

Commute

Starting Address
Destination Address
625 Wisp Creek Dr, Bailey, CO

Curious about your home's value?

Comparable Properties