Link Copied
Listed price in listed location currency (USD).
$3,645
$3,645

432

MLS® 10509607

  • Key Facts
  • Description
  • Map

Key Facts

Type Single Family Residence
Levels Residential Lease
Size -
Garage Yes
Date Available 
Lot Size 0.14 acres
Approx. Age 2021
MLS® Number 10509607

Property Address: 5010 Bellmoore Park Ln, Johns Creek, GA, 30097-2643

Average square foot calculated using Size range provided by listing agent.

Description

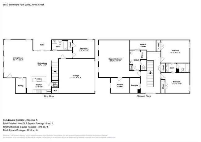
Beautiful 4 bed 3 bath end home (with high 10 ft ceilings on main) in a nice gated community in the city of Johns Creek (Fulton County), newer build (2021)! Tons of natural light flood through the windows. Extra room to the right of the living room can be used as personal storage. The oversized Master bedroom has ample space. Imagine waking up and getting the fresh morning breeze right out the door is your side patio. The Master bathroom contains huge walk-in closets in the bedroom and the master bathroom, double vanity, and a walk-in shower. Kitchin has all stainless-steel appliances, a beautiful kitchen island, and a pantry. 2 of the secondary bedrooms contain a Jack n Jill style bathroom while the final secondary bedroom has its bathroom on the main floor. Separate and spacious Laundry Room with selves for storage. Patio on the side of the house for entertaining guests. HOA cuts the grass on Mondays. 2-car garage in the back. Close proximity to shops, restaurants, and highly-rated Fulton County schools (Northview High school district). Elementary, Middle, and High schools are scored 9 out of 10. Amenities include clubhouse, wedding garden, tennis & basketball courts, 24/7 private gate attendant, fitness center, two pools. Pet friendly. Do not miss your chance at this amazing home! This property is eligible for deposit alternative coverage in lieu of a security deposit. Eligibility requirements apply. For details and enrollment, please contact our leasing team and enjoy a deposit-free renting experience! Specialized Property Management residents are enrolled in the Resident Benefits Package (RBP) for $42.00/month which includes tenant legal liability insurance, HVAC air filter delivery (for applicable properties), credit reporting, renter rewards program, and much more!
MLS® Number10509607
Laundry LevelOther
Central VacNo
FireplaceNo
Acreage0.14
Exterior
GarageYes
Approx. Age2021
BasementNone
DrivewayGarage
Garage Spaces
Heat
A/C
Heating Fuel

Extras

Similar Listings

Price History

Jun 11, 2025End Date
$3,645Sold Price

Leased

Apr 28, 2025List Date
$3,645List Price
  • Commute

Commute

Starting Address
Destination Address
5010 Bellmoore Park Ln, Johns Creek, GA

Curious about your home's value?

Comparable Properties