Link Copied
Listed price in listed location currency (USD).
$525,000

532899 sqft0

MLS® 20994309

  • Key Facts
  • Description
  • Rooms
  • Map

Key Facts

Type Single Family Residence
Levels Residential
Size 2899 sqft
Garage Yes
Taxes $9,596
Days Active 108
Lot Size 
Approx. Age 1994
Avg. Price Per Sqft $181
MLS® Number 20994309

Property Address: 515 Steeplechase Trl, Kennedale, TX, 76060-6031

Average square foot calculated using Size range provided by listing agent.

Description

PRICE IMPROVEMENT AND A NEW 15 YEAR ROOF TO BOOT! Located on a huge corner lot in a wonderfully convenient location in Kennedale, this home has been loved for decades by it's current owners and it truly shows. With 5 bedrooms and 3 full bathrooms, it awaits it's new family. As soon as you drive up to the home you'll notice beautifully updated and renewed landscaping that make the home a picturesque site to see. Inside, you're greeted right away by a spacious formal dining area along with the first of TWO living areas. The updated and upgraded kitchen and bathroom areas will remind you that this home wasn't just lived in, it was loved. New countertops, new appliances, new flooring, new paint, $25, 000 invested in the HVAC, $15, 000 on the fence, a reliable 30 year shingled roof, and a gorgeous and well-maintained pool greet you as you walk through the tiered back yard demonstrate the investment made to keep this home in it's finest and truest form. This home truly has it all. The refrigerator, washer and dryer, and the $5, 000 COMMERCIAL FREEZER can all convey with this home! All located just a short drive from 287 with food, groceries, and shopping. Come and see the approximately $150, 000 invested in this home by it's current owners today!
MLS® Number20994309
Laundry LevelWasher Hookup, Electric Dryer Hookup, Laundry In Utility Room
Central VacNo
FireplaceNo
Acreage0.378
Exterior
GarageYes
Approx. Age1994
Basement
DrivewayAdditional Parking, Driveway, Garage Faces Side
Garage Spaces
Heat
A/C
Heating Fuel

Extras

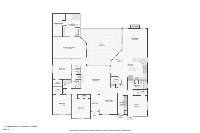
Rooms

Bedroom 1:First Floor1 × 1 ft
Living Room:First Floor1 × 1 ft
515 Steeplechase Trl, Kennedale, TX, 76060-6031

Similar Listings

Price History

List Date
List Price
Status
End Date
Sold Price
Jul 11, 2025
$525,000

For Sale

-
Not Sold Yet
  • Commute

Commute

Starting Address
Destination Address
515 Steeplechase Trl, Kennedale, TX

Like what you see?

Complete the form and we'll be in touch. No login necessary.

Add a Comment

Get notified of price or status changes by saving this listing

Comparable Properties