Link Copied
Listed price in listed location currency (USD).
$900,000
$925,000

563

MLS® 10550323

  • Key Facts
  • Description
  • Map

Key Facts

Type Single Family Residence
Levels Residential
Size -
Garage Yes
Taxes $7,324
Lot Size 0.21 acres
Approx. Age 2007
MLS® Number 10550323

Property Address: 3405 Camellia Ln, Suwanee, GA, 30024-5348

Average square foot calculated using Size range provided by listing agent.

Description

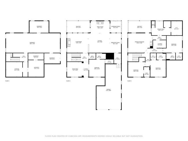
Discover this exceptional, beautifully updated residence nestled within the highly sought-after gated community of Wentworth Manor. Located in South Forsyth County-renowned for top-tier schools and low property taxes-this stunning 5-bedroom, 6-bath home offers spacious, open-concept living spaces designed for both everyday comfort and memorable entertaining. As you approach the covered brick porch, you'll be greeted by freshly refinished hardwood floors that flow seamlessly throughout the main level. To your left, enjoy a generous dining room adorned with elegant wainscoting and crown molding, perfect for hosting family gatherings. To your right, the versatile main-level bedroom, featuring custom molding and glass French doors, provides an ideal space for multigenerational living or a private home office. The expansive, open-concept living area is thoughtfully designed to promote a smooth flow between spaces while maintaining individual character. The family room features a striking floor-to-ceiling stacked stone fireplace and beamed ceiling, creating a warm and inviting atmosphere. The gourmet kitchen is truly the heart of the home, boasting a large eat-in island, custom cabinetry, granite countertops, stainless steel appliances-including a 6-burner gas cooktop with vented hood and double wall ovens-and a spacious walk-in pantry. Adjacent to the kitchen, the charming keeping room with vaulted ceiling and brick fireplace offers a cozy retreat and easy access to the private screened-in deck. The level, fenced, wooded backyard provides a tranquil outdoor setting, ideal for relaxation or entertaining guests. A practical mudroom at the garage entry helps keep your home organized. Upstairs, the luxurious master suite features a sitting area with a brick fireplace, tray ceiling, and a spa-inspired bath with granite countertops, custom cabinetry, a whirlpool tub, and a large walk-in closet with windows. Three additional spacious bedrooms, each with their own bathrooms, along with a well-appointed laundry room with custom cabinetry, complete the upper level. The generous walk-out lower level offers approximately 2, 000 square feet of versatile space, perfect for multigenerational living or personalized customization. Featuring large windows that flood the space with natural light, a rough-in for a full bath, and endless potential, this area invites your creative vision. Enjoy the serenity of the private, landscaped backyard-an ideal setting for relaxation or entertaining in a peaceful, wooded environment. This meticulously maintained and updated home showcases fresh paint throughout, extensive molding, 10-foot ceilings, and numerous high-quality upgrades. Conveniently located within walking distance to top-rated Lambert High School, South Forsyth Middle School, Publix, shopping, and a variety of dining options, this home combines convenience with comfort. Welcome to your dream home in a wonderful gated community-your new chapter begins here!
MLS® Number10550323
Laundry LevelUpper Level
Central VacNo
FireplaceNo
Acreage0.21
Exterior
GarageYes
Approx. Age2007
BasementExterior Entry, Full, Interior Entry
DrivewayGarage
Garage Spaces
Heat
A/C
Heating Fuel

Extras

Similar Listings

Price History

Jul 9, 2025End Date
$900,000Sold Price

Sold

Jun 24, 2025List Date
$925,000List Price
  • Commute

Commute

Starting Address
Destination Address
3405 Camellia Ln, Suwanee, GA

Comparable Properties